Skip to content
CALL 0333 090 7528 (OPEN MONDAY TO FRIDAY | 9 AM TO 5 PM)
0333 090 7528 | HELLO@HOMEBUILDDOORS.CO.UK

5800mm White Heritage Visofold 1000 Bifold Door - 6 sections

Original price £4,219.00 - Original price £4,345.00
Original price
£4,219.00
£4,219.00 - £4,345.00
Current price £4,219.00
Opening Direction and Trickle Vents: Open In - Without Trickle Vents (+£0)
Handle and Hinge Colour: Black (+£0)
Configuration: Configuration 11: Six Panels - Slide to the left (looking from outside)

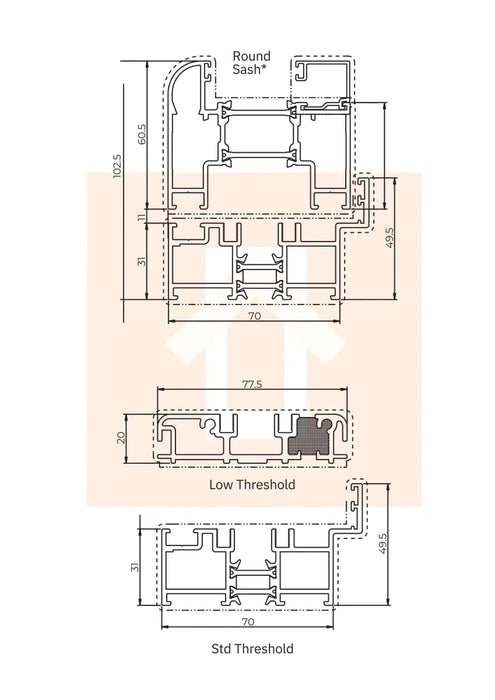
Visofold 1000 Bifold Specification 

  • Brickwork Opening: W5805mm x H2100mm
  • Outer Frame Size: W5790 x H2090mm
  • Application: Domestic / Commercial
  • x2 Astragal Bar to give a stunning heritage look
  • Finish: Single / Dual colour, marine quality polyester powder coated
  • Profile: Round
  • Lock Mechanism: Ultion (diamond accredited) Cylinder as std.- multi-point locking
  • Frame depth: 70mm
  • Typical sight line: 132mm
  • Max sash weight: 100kg
  • U Value: 1.3-1.8 w/m²k
  • Security tested: PAS 24: 2012 DOC Q Optional Upgrade
  • Weather tested: BS 6375 Part 1: 2009
  • Glazing: DG 28mm
  • Bead: Internal Only
  • Cills: 150mm
  • Trickle vents: Optional
  • Open in/Open out (Open inward doors have 25mm clearance only)
  • Slide Left or Right Option Does Not Open From Outside
Smarts Visofold 1000 Heritage Aluminium Bifold Doors

Smarts Visofold 1000 Heritage Aluminium Bifold Doors

Introducing the Smarts Visofold 1000 Heritage Bifold Doors – the epitome of design excellence and innovative engineering. These bifold doors seamlessly blend the classic aesthetics of traditional craftsmanship with the advanced functionality of contemporary design, offering an unparalleled solution for your home.

Crafted with meticulous attention to detail, the Visofold 1000 Heritage series elevates your living space, blurring the lines between the indoors and the great outdoors. Whether you're looking to flood your home with natural light, create a fluid transition to your garden, or simply enjoy unobstructed views, these doors offer the flexibility and style to meet every desire.

Key Features:

Key Features:

  • Elegant Design: With their slim frames and expansive glass panels, the Visofold 1000 Heritage doors deliver a sleek, minimalist aesthetic that complements any architectural style, from classic to contemporary.
  • Superior Performance: Engineered for durability and strength, these bifold doors ensure smooth operation and robust security. High-quality materials and finishes guarantee long-lasting beauty and performance, resisting the elements and everyday wear and tear.
  • Energy Efficiency: Incorporating the latest in thermal break technology, the Visofold 1000 Heritage doors help maintain comfortable indoor temperatures year-round, reducing energy costs and enhancing your home’s sustainability.
  • Customizable Options: Tailor your doors to your precise specifications with a range of colors, finishes, and configurations. Whether you’re looking for a bold statement piece or a subtle complement to your home’s décor, there’s a solution to match.
  • Seamless Integration: Designed to fit flawlessly into any space, these bifold doors make it easy to transform your home. The seamless operation and folding mechanism allow for a wide opening, offering a truly integrated indoor-outdoor living experience.

Net Orders Checkout

Item Price Qty Total
Subtotal £0.00
Shipping
Total

Shipping Address

Shipping Methods

Welcome to Shopify Store

I act like: